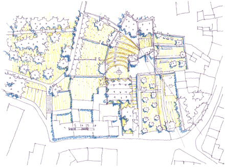
Vorplanung 2007
Die neue Grüngestaltung sieht öffentliche Freiflächen
im Anschluss an die Sangerhäuser Straße vor, die sich über
die terrassenartig angelegten Plateaus der ehemaligen Gärten
fortsetzen. Die Terrassen bieten unter-schiedliche Aufenthaltsräume,
die über einen Hauptweg miteinander verknüpft sind.

Entwurf: Büro lohrer/hochrein
|